新潟県糸魚川市徳合
お問い合わせ先新潟支店
物件番号:4194
1500万円 価格980万円
| 特徴 | 
 | |||
|---|---|---|---|---|
| 交通 | -電車: ひすいライン・筒石駅より約4.7km 車で約9分 車: 北陸自動車道・名立谷浜ICより約7.9km 車で約12分 | |||
| 土地 | 面積 | ①448.33m²(135.61坪) 宅地 ②88m²(26.62坪) 原野 ③563m²(170.30坪) 山林 | 地目 | 宅地・原野・山林 | 
| 権利 | 所有権 | 用途 | 無指定 | |
| 建ぺい率 | 指定なし | 容積率 | 指定なし | |
| 都市計画 | 区域外 | 接道 | 東側幅員約5.57m舗装公道14.13mに接する 西側幅員約5.64m舗装公道12.33mに接する | |
| 地勢 | - | その他 | 土砂災害警戒区域(急傾斜地の崩落) 22条指定区域外・準防火地域外 ※契約不適合責任免責 ※建物状況調査は売主実施予定なし | |
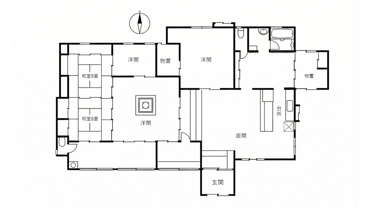
| 建物 | 面積 | ①215.29m²(65.12坪) ②39.71m²(12.01坪) 倉庫1階 ③24.86m²(7.52坪) 倉庫2階 | 間取り | 5DK | 
| 構造 | 木造亜鉛メッキ鋼板ぶき平屋建 | 築年 | 築年数不詳 | |
| 方角 | - | その他 | 附属建物:倉庫 構造:木・土蔵造亜鉛メッキ鋼板ぶき2階建 築年不詳 西側道路を挟んで車庫有。車2台駐車可能。 | |
| 設備 | 電気 | 東北電力 | ガス | LPG | 
| 水道 | 公営水道 | トイレ | 公共下水 | |
| ネット | - | その他 | - | |
| 周辺施設 | 役所 | 約25.5km 車で約32分 | スーパー・商店 | 約3.3km 車で約6分 | 
| 病院 | 約5.1km 車で約8分 | 学校 | 約3.6km 車で約6分 | |
| 温泉施設 | - | その他 | 道の駅うみてらす名立 約5.3km 車で約9分 日本海まで車で約5分 | |
新潟県糸魚川市徳合付近の地図
- ※図面と現況が異なる場合は現況を優先させていただきます。
- ※土地。建物面積は公簿面積になりますのでご了承ください。
- ※物件は売却済みの場合もございますのでご了承ください。
この物件に関するお問い合わせ
新潟支店025-775-7461営業時間:9:30~18:00/水曜定休
| 都道府県 | ||
|---|---|---|
| 予算 | ||
| こだわり 検索!! | 環境 | |
| 至近 | ||
| 物件 タイプ | ||
| 土地 | ||
| その他 | ||

 
































.jpg_174_cf.jpg)





