新潟県十日町市諏訪町
お問い合わせ先新潟支店
物件番号:4239
980万円 価格700万円
| 特徴 |
|
|||
|---|---|---|---|---|
| 交通 | -電車: 北陸急行ほくほく線・JR飯山線より約0.8km 車で約3分 車: 関越自動車道・六日町ICより約17km 車で約24分 |
|||
| 土地 | 面積 | 140.03m²(42.36坪) 宅地 |
地目 | 宅地 |
| 権利 | 所有権 | 用途 | 準工業地域 | |
| 建ぺい率 | 60% | 容積率 | 200% | |
| 都市計画 | 非線引 | 接道 | 西側に幅員約4m~4.4mの舗装公道が約6.8m接している | |
| 地勢 | 南に開けている | その他 | 特別用途地区あり 「大規模集客施設制限地区」 | |
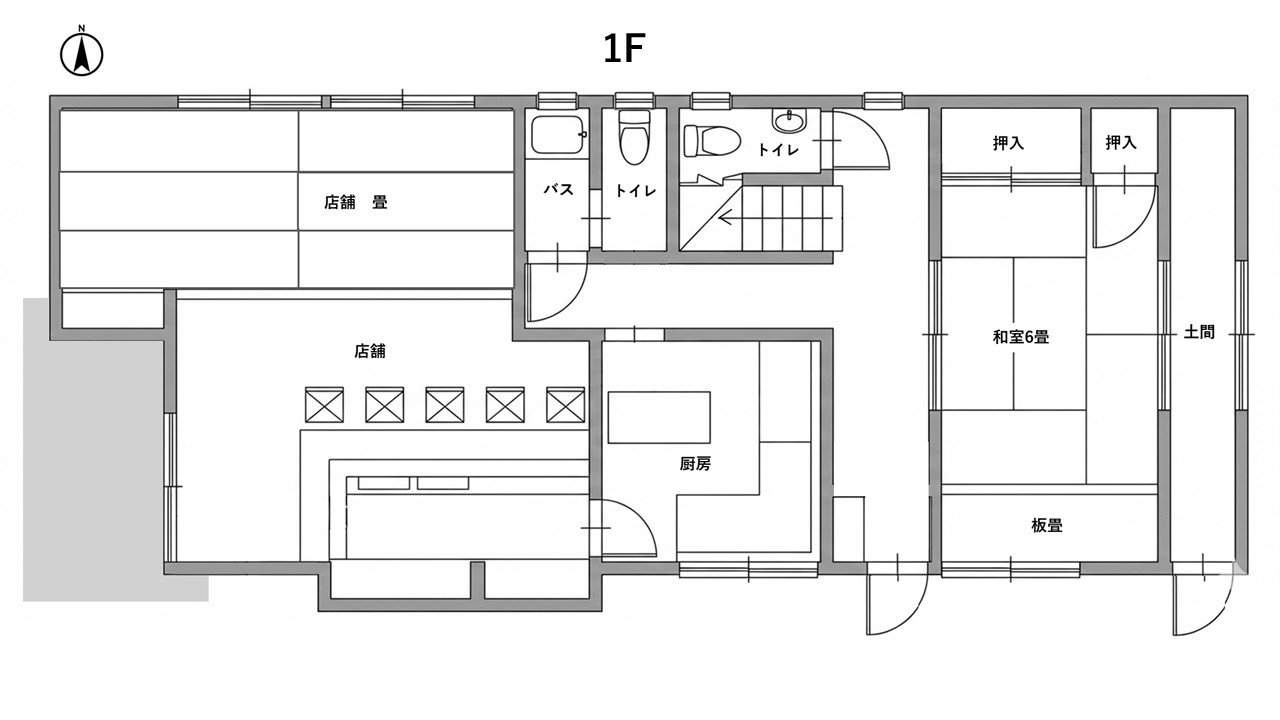
| 建物 | 面積 | 145.97m²(44.16坪) |
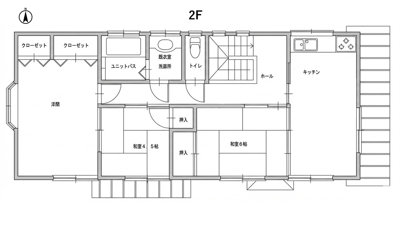
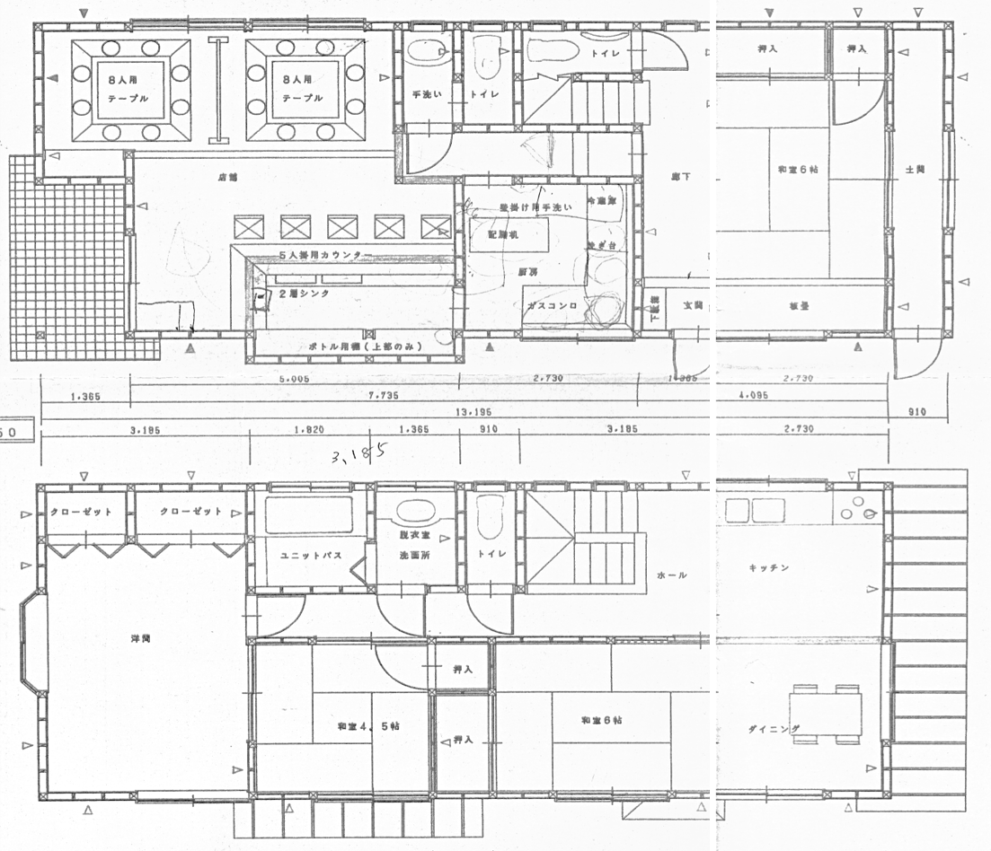
間取り | 4SLDK |
| 構造 | 木造亜鉛メッキ鋼板葺2階建 | 築年 | 平成13年 | |
| 方角 | 西 | その他 | 防火関係:法第22条区域内 種類:居宅・店舗 |
|
| 設備 | 電気 | 東北電力 引込済 | ガス | LPG |
| 水道 | 公営水道 | トイレ | 公共下水 | |
| ネット | NTTフレッツ光エリア | その他 | テレビ:個人アンテナ 給湯 キッチン:灯油 給湯 風 呂:灯油 給湯 調理場(店舗):LPG 上下水道管(建物外)、上下水道宅内配管図 あり 屋根に融雪装置あり 不凍液をボイラーで温めて除雪 令和7年度 固定資産税:48,862円 都市計画税:6,602円 |
|
| 周辺施設 | 役所 | 十日町市役所 約0.9km 車で約4分 | スーパー・商店 | 原信十日町店 約0.9km 車で約4分 |
| 病院 | 県立十日町病院 約1km 車で約5分 | 学校 | ・県立十日町高等学校 約0.5km 車で約2分 ・市立十日町小学校 約0.6km 車で約2分 | |
| 温泉施設 | - | その他 | 簡易郵便局、薬局(ウエルシア)、公園などが1km圏内にあり | |
新潟県十日町市諏訪町付近の地図
- ※図面と現況が異なる場合は現況を優先させていただきます。
- ※土地。建物面積は公簿面積になりますのでご了承ください。
- ※物件は売却済みの場合もございますのでご了承ください。
この物件に関するお問い合わせ
新潟支店025-775-7461営業時間:9:30~18:00/水曜定休
| 都道府県 | ||
|---|---|---|
| 予算 | ||
| こだわり 検索!! |
環境 | |
| 至近 | ||
| 物件 タイプ |
||
| 土地 | ||
| その他 | ||







